Продаж 2 кімнатної квартири. Ужгород. (№ 213-208-894)

Ціна: 149 740 $
Характеристики
| Ціна: | 149 740 $ |
|---|---|
| № об'єкта: | 213-208-894 |
| Кімнат: | 2 розд |
| Поверх: | 6 / 9 ліфт |
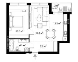
| Площа: | 60.1 / 33.4 / 12.2 м2 |
| Санвузол: | 1 сумісний |
| Балкон: | балкон |
| Додатково: | новобудова |
Адреса: Закарпатська, Ужгород, Легоцького
Продається простора квартира в комплексі бізнес-класу - ЖК Parkland.
Комплекс закритого типу, з великим внутрішнім двором площею 2 га, з безліччю дитячих зон для різного віку, з колясочними зонами, велозонами. Вхід у внутрішній двір виключно по face id.
Квартира розташована на 6 поверсі.
Складається з окремої кімнати та великої зони кухні-вітальні площею 34.8кв.м. з виходом на відкритий балкон, яку можна легко переділити на окрему кімнату та кухню, суміжного санвузла.
По всій квартирі розведено теплу підлогу, опалення індивідуальне електро.
Повна комплектація квартира, свіжий ремонт, авторський дизайнерський проект.
Огляд та деталі за телефоном.
Деталі
Будинок Введено в експлуатацію - Бетонно монолітний, в квартирі 2 кімнати. Планування кімнат Роздільне. В квартирі є Телевізор, Шафа, Холодильник, Ліжко, Пральна машина, Мікрохвильовка, Кондиціонер, Посудомийна машина. Загальний стан квартири - Дизайнерський ремонт. Вільна. Комісія за послуги 2 %
В квартирі є
Посудомийна машина
Кондиціонер
Мікрохвильовка
Пральна машина
Ліжко
Холодильник
Шафа
Телевізор








