Продаж 3 кімнатної квартири. Ужгород. (№ 213-215-527)
Ціна: 167 400 $

Слов'янська Набережна, Ужгород, Закарпатська, Боздош
Характеристики
| Ціна: | 167 400 $ |
|---|---|
| № об'єкта: | 213-215-527 |
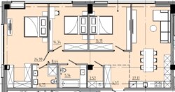
| Кімнат: | 3 розд |
| Поверх: | 3 / - |
| Площа: | 111.6 / - / - м2 |
| Санвузол: | 1 роздільний |
| Додатково: | новобудова |
Опис
🌆 Видова квартира в ЖК MAVERICK, Ужгород
Простора трикімнатна квартира бізнес-класу в сучасному житловому комплексі MAVERICK, розташованому на першій лінії Слов’янської набережної.
Квартира має панорамний вид на набережну та річку Уж.
📐 Характеристики:
Секція: 2
Поверх: 3
Площа: 111,6 м²
Стан: без ремонту
Висота стелі: 2,85 м
Опалення: індивідуальне (в квартирі)
Ціна за м²: 1 500 $
Загальна вартість: 167 400 $
🏗 Комплекс MAVERICK:
Клас — бізнес
Монолітно-каркасна технологія будівництва
Керамоблокові стіни, утеплення мінеральною ватою
Вентильований фасад з клінкерної цегли
Закрита територія, система контролю доступу
Підземний паркінг з ліфтовим доступом
Дизайнерське лобі, двір-променад із зонами відпочинку та спортом















