Продаж 1.5 кімнатної квартири. Ужгород. (№ 213-216-749)

Ціна: 62 010 $
Характеристики
| Ціна: | 62 010 $ |
|---|---|
| № об'єкта: | 213-216-749 |
| Кімнат: | 1 розд |
| Поверх: | 3 / 7 ліфт |
| Площа: | 53 / - / 18 м2 |
| Санвузол: | 1 сумісний |
| Балкон: | балкон |
| Додатково: | новобудова |
Адреса: Закарпатська, Ужгород, Новий, Баб'яка
🏡 Продаж 1,5-кімнатної квартири в ЖК B4, м. Ужгород
📍 Адреса: вул. Баб’яка, 8 (будинок №4)
🏗 Здача будинку: кінець 2025 року
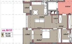
📐 Площа: 53,59 м²
🏢 Поверх: 3 з 7
💡 Тип угоди: переуступка
💧 Опалення: індивідуальне газове
🔹 Основна інформація:
Формат квартири — 1,5 кімнати (спальня + кухня-вітальня)
Стан: після будівельників
Клас житла: комфорт
Будинок: утеплений мінеральною ватою
Територія: закрита, з дитячими та спортивними майданчиками
Паркінг: підземний, з ліфтом
🏠 Планування:
спальня з виходом на балкон
простора кухня-вітальня з лоджією
коридор із місцем під гардеробну
суміжний санвузол
Квартира не кутова, тепла, з вікнами у двір.
⚙️ Комплектація від забудовника:
індивідуальний газовий котел і радіатори
розведена електрика та сантехніка
вхідні двері і металопластикові вікна
чорнова штукатурка та стяжка підлоги
🌆 Переваги локації:
Надзвичайно зручне розташування — район з розвиненою інфраструктурою:
поруч Епіцентр, ТЦ «Токіо», супермаркети, кафе, ресторани
неподалік школи, дитячі садочки, відділення Нової пошти
зручний транспортний зв’язок із центром міста



